Verkocht

Krimpen aan de Lek – Hoofdstraat 104

2931 CL, Krimpen aan de Lek
100 m2 woonoppervlakte
88 m2 perceeloppervlakte
5 kamers
Energielabel C

Beschrijving

Op een fijne plek is deze eengezinswoning met vier ruime slaapkamers gelegen. De woning heeft een ruime tuingerichte woonkamer en half open keuken aan de voorzijde welke is voorzien van diverse inbouwapparatuur.

De woning ligt aan een rustig voetpad, in een gezellig dorp met een vernieuwde dorpskern vol winkels. Openbaar vervoer richting Rotterdam is binnen handbereik én de pont naar Kinderdijk behoort ook tot de mogelijkheden.

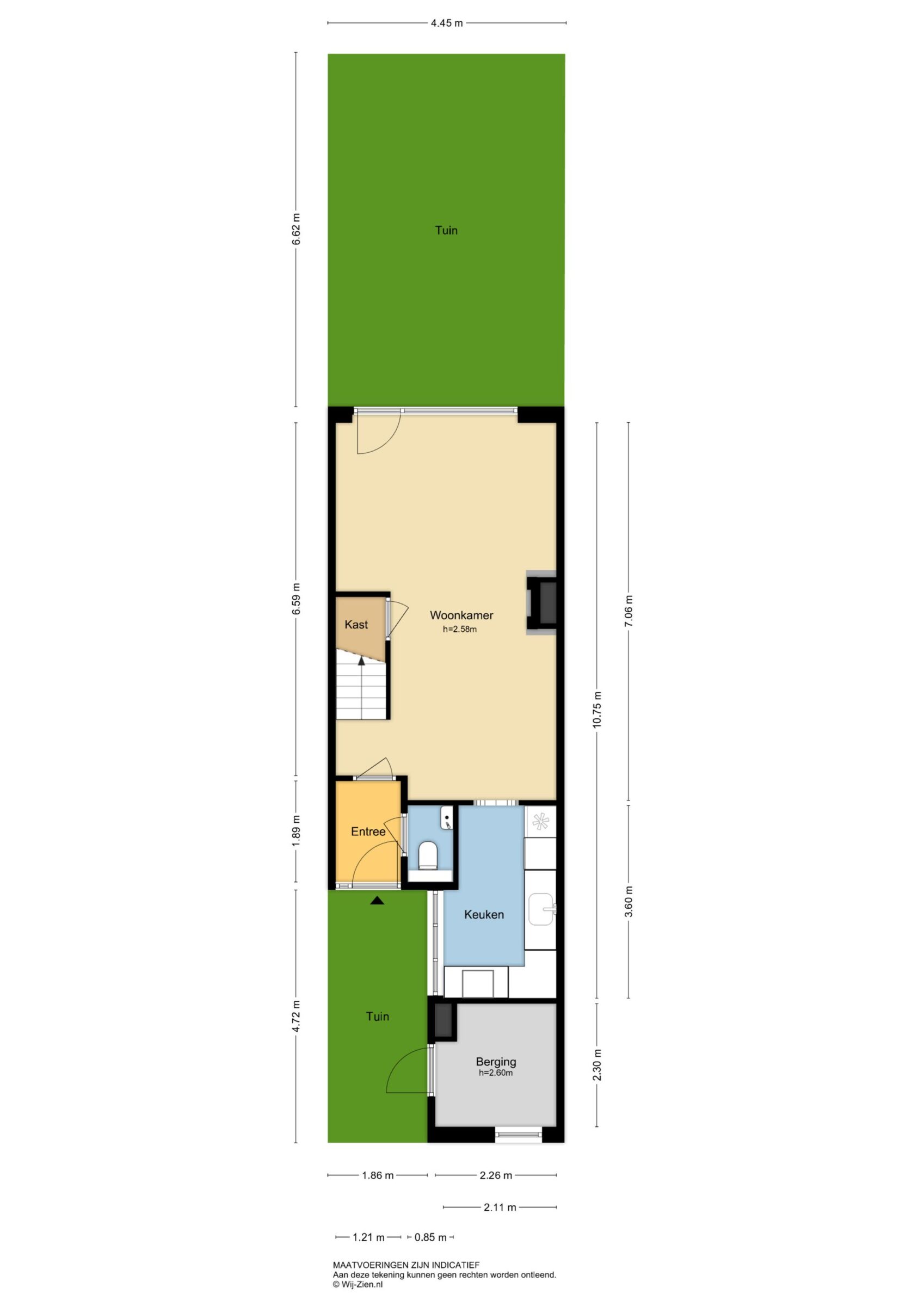
Indeling:

Begane grond:
Entree in hal welke toegang geeft tot de woonkamer en de toiletruimte. Tuingerichte woonkamer met vaste kast onder de trap en open verbinding met de keuken. Via de woonkamer is de tuin bereikbaar. De keuken is voorzien van een inbouw oven, kookplaat, afzuigkap, magnetron, vaatwasser en koelkast.

1e verdieping:
Overloop welke toegang geeft tot de twee slaapkamers, de badkamer en de trap naar de tweede verdieping. De badkamer is voorzien van een wastafelmeubel en inloopdouche.

2e verdieping:
Overloop welke toegang geeft tot de beide slaapkamers en de ruimte met de CV installatie.

Tuin:
De achtertuin is gesitueerd op het zonnige zuiden en voorzien van een overkapping.
Aan de voorzijde is een aangebouwde berging aanwezig.

Bijzonderheden:
– Zonwering op de begane grond aan de achterzijde
– Er is een bouwkundigrapport van de woning aanwezig
– Niet bewonersclausule van toepassing
– Projectnotaris van toepassing; Van Meerwijk Netwerk Notarissen te Made

Robert Soffree

Robert Soffree

Makelaar

Meer weten over deze woning?

Wij staan u graag te woord. Neem vrijblijvend contact met ons op.

Kenmerken

Status
Verkocht
Aanvaarding
In overleg
Koopprijs
€ 350.000,- k.k.

Bouw

Objecttype
Woonhuis
Soort
Eengezinswoning
Bouwjaar
1975
Dak type
Lessenaardak

Oppervlakten en inhoud

Woonoppervlakte
100 m2
Perceel oppervlakte
88 m2
Inhoud
370 m3

Indeling

Aantal kamers
5
Aantal slaapkamers
4

In de buurt

Nieuw Beschikbaar

Ridderkerk – Van Beethovenstraat 143

2983 BT, Ridderkerk
€ 275.000,- k.k.
68 m2
3 kamers
C
Woning bekijken Woning bekijken
Nieuw Beschikbaar

Ridderkerk – Koolmees 136

2986 VJ, Ridderkerk
€ 495.000,- k.k.
119 m2
6 kamers
C
Woning bekijken Woning bekijken
Nieuw Beschikbaar

Ridderkerk – Couperusstraat 45

2985 CC, Ridderkerk
€ 435.000,- k.k.
122 m2
5 kamers
C
Woning bekijken Woning bekijken
Nieuw Beschikbaar

Ridderkerk – Rijksstraatweg 290

2988 BP, Ridderkerk
€ 475.000,- k.k.
105 m2
6 kamers
C
Woning bekijken Woning bekijken